Haus F (Neubau eines Wohnhauses in München Parkstadt-Bogenhausen)

Projektdaten

Entwurf Martin Hron
Zeitraum 2009
Leistungsphasen 1-3 HOAI
Status Entwurf
Auftraggeber privat

« Zur Projektübersicht

Haus F München Bogenhausen Architekt Hron – Außenansicht 1

Klassisch modern: Entwurf für eine Villa in München-Bogenhausen

Haus F München Bogenhausen Architekt Hron – Außenansicht 2

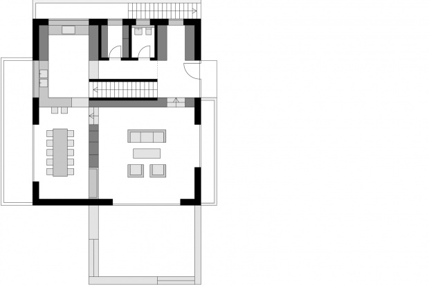
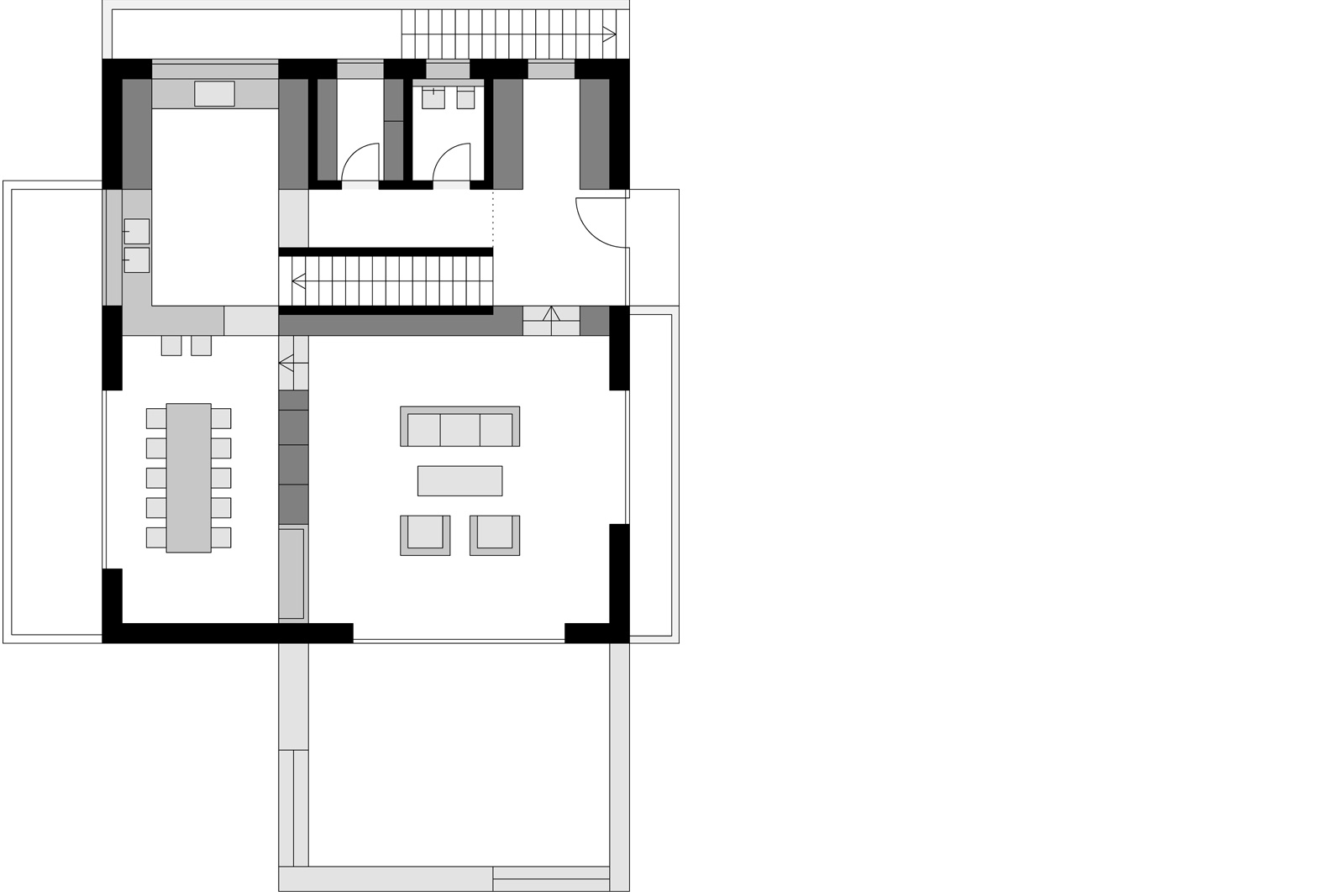
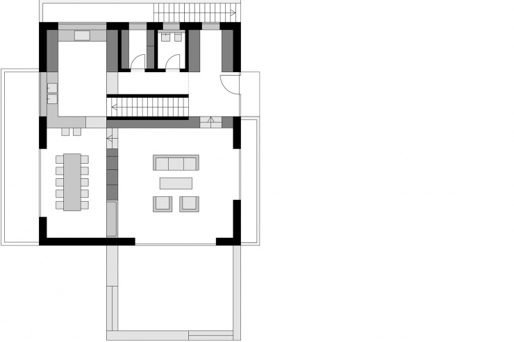
Haus F München Bogenhausen Architekt Hron - Grundriss

Haus F München Bogenhausen Architekt Hron – Außenansicht 1Haus F München Bogenhausen Architekt Hron – Außenansicht 2Haus F München Bogenhausen Architekt Hron - Grundriss
Dipl.-Ing. (FH) Martin Hron, Architekt & Immobilien­ökonom · Werdenfelsstraße 42a · 81377 München
Tel. +49 89 71 999 707 · Fax +49 89 71 999 708 E-Mail: · Impressum · Datenschutz
Seite drucken Seite drucken · Seite weiterempfehlen Seite weiterempfehlen
Digitale Visitenkarte (VCF) · Instagram: @architekt_hron